ARCOLE (VR) APPARTAMENTO IN ASTA IN VIA ATTILIO BERNARDI 49

ARCOLE (VR) APPARTAMENTO IN ASTA IN VIA ATTILIO BERNARDI 49

  • Cod. rif.: GB11062026
  • Prezzo: 53.100,00 €
  • Camere 1
  • Bagni 1
  • 169 Mq

Descrizione

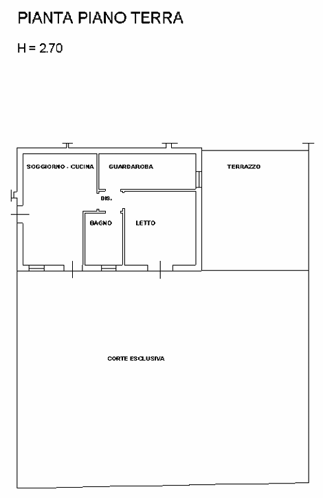
ARCOLE (VR) VIA ATTILIO BERNARDI 49 - Piena proprietà di appartamento al piano terra con giardino e garage. L'appartamento è composto di soggiorno/cucina, una camera da letto, un bagno e un guardaroba. L'immobile risulta occupato da terzi con regolare contratto d'affitto con scadenza al 10/05/2028 con corrispettivo annuo euro 5.640,00.

Immobile soggetto a E.I. n.ro 140/2025 - LOTTO UNICO - Tribunale di VERONA

PREZZO BASE D'ASTA € 70.800,00

OFFERTA MINIMA DI PARTECIPAZIONE € 53.100,00

PROSSIMO ESPERIMENTO: 11/06/2026

PER VISITE ED INFORMAZIONI CHIAMARE IL 0458012557 o 3491676530

La nostra Agenzia presente da anni sul mercato, ricerca le procedure esecutive e concorsuali fornendo una consulenza tecnico legale, bancaria completa per la partecipazione all'asta per l'acquisto dell'immobile, che comprende:
•Analisi della procedura esecutiva, valutazione del compendio immobiliare.
•Assistenza e Partecipazione all'asta fino alla chiusura dell'operazione e all'assegnazione dell'immobile tramite, decreto di trasferimento o acquisto con rogito notarile.
•Ricerca migliore tipologia di finanziamento con gli istituiti di credito convenzionati con il Tribunale di VERONA per l'acquisto dell'immobile in Asta.

Da molti anni garantiamo un servizio sicuro e completo, volto al soddisfacimento della clientela più esigente che spazia dall’investitore al costruttore, dall’azienda multinazionale al privato.

Ci occupiamo con successo di:
•Vendita e Locazione di singole unità immobiliari residenziali e commerciali
•Vendite in blocco e/o frazionate, di interi edifici, residenziali, commerciali e industriali.
•Vendite in cantiere di Nuove Costruzioni, con lo sviluppo dei servizi connessi al cantiere
•Consulenza finanziaria, con ricerca e valutazione di mutui bancari e/o leasing
•Gestione delle locazioni di patrimoni immobiliari
•Marketing e comunicazione immobiliare
I nostri servizi:
•Multi-pubblicazione dell'offerta immobiliare sui migliori canali online per la massima visibilità e tempi di conclusione più rapidi
•Valutazioni immobiliari
•Certificazioni energetiche, oggi obbligatorie per la vendita e la locazione di tutti gli immobili
•Verifiche di regolarità urbanistiche e catastali
o Registrazioni telematiche contratti di locazione (registrazione, rinnovo, proroga, risoluzione) a 50,00 € + iva
o Registrazioni telematiche contratti di locazione con cedolare secca a 30,00 € + iva

Informazioni

  • Bagni : 1
  • Camere : 1
  • Garage : Si
  • Ripostigli : 1
  • Riscaldamento autonomo : Si
  • Giardino : Si
  • Soggiorno con angolo cottura : Si
  • Terrazzi : 1
  • Piano terra : Si
  • Totale piani : 2
  • Classe energetica : E
  • Stato manutenzione : Buono
  • Numero locali : 2
  • Animali ammessi : Si
  • Numero portoni : 1
  • Numero accessi carrai : 1

Dati aggiuntivi

  • Mq giardino : 155
  • Totale piani unità : 1

Richiedi informazioni sull'immobile

(*) Campi obbligatori

(Leggi la privacy policy)

** ESPRESSIONE DEL CONSENSO
Procedendo con la compilazione e con l’invio di questo modulo, presto consenso al trattamento dei dati personali forniti con le modalità e nei limiti indicati dall’informativa, ai sensi e per gli effetti dell’art. 7 del GDPR UE 679/2016.