DOLCE' (VR) QUOTA DI 5/15 DI COMPLESSO RESIDENZIALE IN ASTA IN VIA MENEVO 3

DOLCE' (VR) QUOTA DI 5/15 DI COMPLESSO RESIDENZIALE IN ASTA IN VIA MENEVO 3

  • Cod. rif.: GB29042026
  • Prezzo: 25.312,00 €
  • Camere 4
  • Bagni 6
  • 3229 Mq

Descrizione

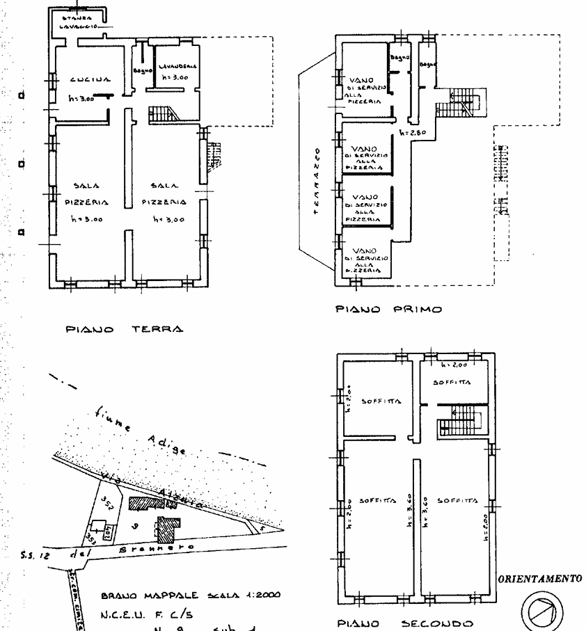
DOLCE' (VR) VIA MENEVO 3 - Quota di 5/15 di proprietà di Complesso immobiliare. Il complesso edilizio in oggetto è costituito da n.° 2 fabbricati con terreno pertinenziale. È infatti presente un fabbricato che si sviluppa su tre livelli fuori terra (terra, primo e secondo), oltre al piano interrato, composto da una unità commerciale C/1, sub 1, un tempo adibita a pizzeria, nonché composto da n.° 2 unità abitative, sub 2 e 3.
Il sub 1 è composto da:
• Piano terra: 2 ampie sale pizzeria, una cucina, una stanza lavaggio, un bagno, una lavanderia e vano scala.
• Piano primo: corridoio, n. 2 servizi igienici, n.° 4 vani di servizio alla pizzeria un terrazzo.
• Piano secondo: n.° 4 vani soffitta
Il sub 2 si sviluppa come segue:
• Piano terra: soggiorno-pranzo, cucinino e vano scala.
• Piano primo: n.° 2 camere da letto, un servizio igienico, n.° 2 balconi.
• Piano scantinato: vano cantina e vano scala.
Sub. 3: abitazione attualmente occupata sita al Piano primo e suddivisa in soggiorno-pranzo, corridoio, n.° 2 camere da letto, un servizio igienico, n.° 2 balconi. Scala di accesso esterna.
Sub. 10: deposito disposto al piano terra e suddiviso in ampio vano, un vano tipo officina, un ufficio, spogliatoio/servizio igienico, è presente un soppalco adibito a mensa e deposito.
Si evidenzia che erano presenti ulteriori fabbricati che alla data odierna risultano demoliti (Sub.5 e 11).

Immobile soggetto a Fall. n.ro 104/2021 - LOTTO C1 - Tribunale di VERONA

PREZZO BASE D'ASTA € 25.312,50

OFFERTA MINIMA DI PARTECIPAZIONE € 25.312,50

PROSSIMO ESPERIMENTO: 29/04/2026

PER VISITE ED INFORMAZIONI CHIAMARE IL 0458012557 O 3491676530

La nostra Agenzia presente da anni sul mercato, ricerca le procedure esecutive e concorsuali fornendo una consulenza tecnico legale, bancaria completa per la partecipazione all'asta per l'acquisto dell'immobile, che comprende:
•Analisi della procedura esecutiva, valutazione del compendio immobiliare.
•Assistenza e Partecipazione all'asta fino alla chiusura dell'operazione e all'assegnazione dell'immobile tramite, decreto di trasferimento o acquisto con rogito notarile.
•Ricerca migliore tipologia di finanziamento con gli istituiti di credito convenzionati con il Tribunale di Verona per l'acquisto dell'immobile in Asta.

Da molti anni garantiamo un servizio sicuro e completo, volto al soddisfacimento della clientela più esigente che spazia dall’investitore al costruttore, dall’azienda multinazionale al privato.

Ci occupiamo con successo di:

•Consulenza finanziaria, con ricerca e valutazione di mutui bancari e/o leasing
•Gestione delle locazioni di patrimoni immobiliari
•Marketing e comunicazione immobiliare
I nostri servizi:
•Multi-pubblicazione dell'offerta immobiliare sui migliori canali online per la massima visibilità e tempi di conclusione più rapidi
•Valutazioni immobiliari
•Certificazioni energetiche, oggi obbligatorie per la vendita e la locazione di tutti gli immobili
•Verifiche di regolarità urbanistiche e catastali
o Registrazioni telematiche contratti di locazione (registrazione, rinnovo, proroga, risoluzione) a 50,00 € + iva
o Registrazioni telematiche contratti di locazione con cedolare secca a 30,00 € + iva

Informazioni

  • Bagni : 6
  • Camere : 4
  • Cucina : Si
  • Soggiorno : Si
  • Cantina : Si
  • Riscaldamento autonomo : Si
  • Ingresso indipendente : Si
  • Soggiorno con angolo cottura : Si
  • Lavanderia : Si
  • Piano terra : Si
  • Primo piano : Si
  • Totale piani : 2
  • Soffitta : Si
  • Classe energetica : Non soggetto a Certificazione
  • Stato manutenzione : Buono
  • Numero locali : 6
  • Porticato : Si
  • Numero portoni : 1
  • Numero accessi carrai : 1

Dati aggiuntivi

  • Totale piani unità : 2

Richiedi informazioni sull'immobile

(*) Campi obbligatori

(Leggi la privacy policy)

** ESPRESSIONE DEL CONSENSO
Procedendo con la compilazione e con l’invio di questo modulo, presto consenso al trattamento dei dati personali forniti con le modalità e nei limiti indicati dall’informativa, ai sensi e per gli effetti dell’art. 7 del GDPR UE 679/2016.