BOVOLONE (VR) LABORATORIO CON TRE ABITAZIONI IN ASTA IN VIA MORE 3

BOVOLONE (VR) LABORATORIO CON TRE ABITAZIONI IN ASTA IN VIA MORE 3

  • Cod. rif.: GB13042026
  • Prezzo: 110.742,00 €
  • Camere 1
  • Bagni 1
  • 3381 Mq

Descrizione

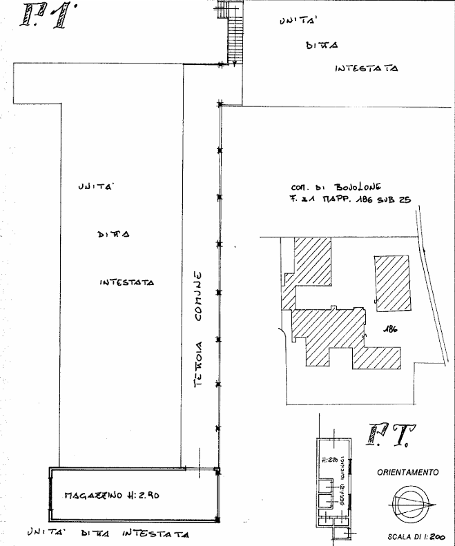
BOVOLONE (VR) VIA MORE 3 - Piena proprietà di 14 laboratori, 5 magazzini ed 1 abitazione.
Il lotto in oggetto si compone di:
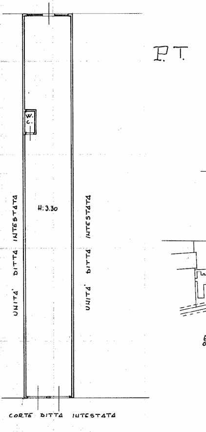
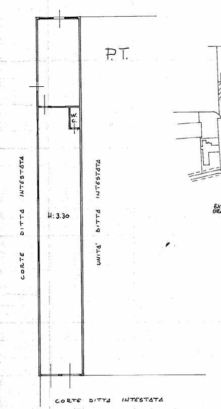
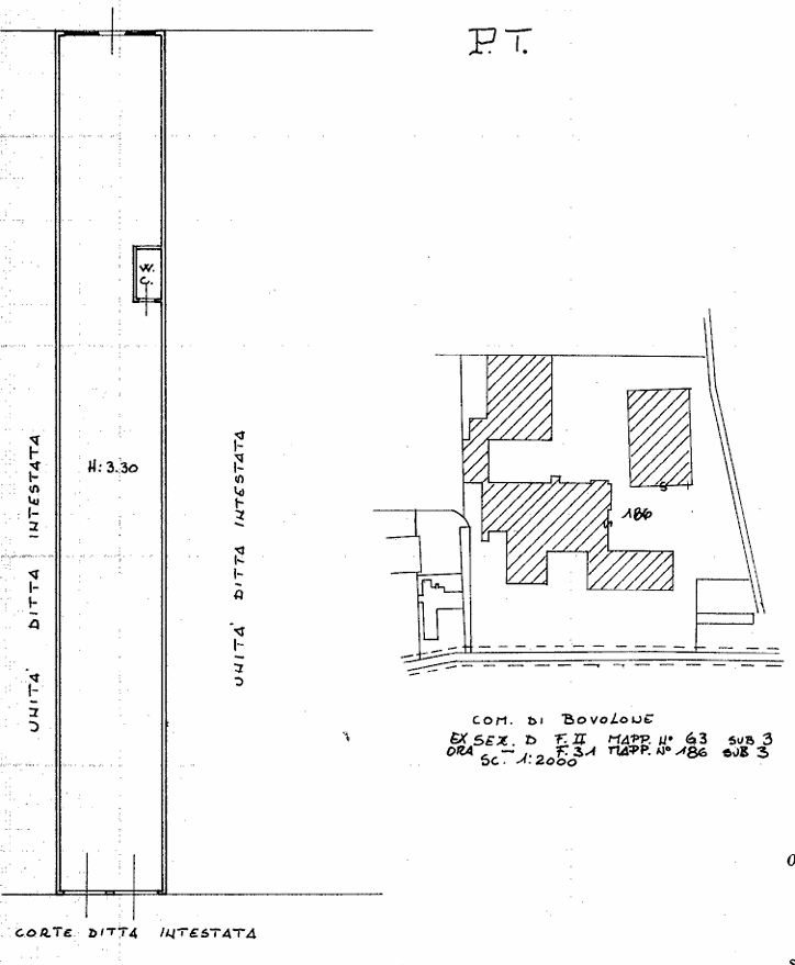
• 6 laboratori in linea che si sviluppano su un unico livello (piano terra), formando un unico edificio rettangolare. I laboratori identificati con i sub. 1, 2, 3 e 4 sono costituiti da un unico ampio vano e piccolo servizio igienico, mentre i sub 5 e 6 sono divisi in due ambiti oltre al servizio igienico.
• 2 laboratori, uno al piano terra e l’altro al piano primo; il sub. 7 è costituito da un ampio vano laboratorio, un vano ufficio ed un vano servizio igienico, mentre il sub. 19 è accessibile da scala esterna metallica, è costituito da un unico ampio vano laboratorio ed un vano servizio igienico.
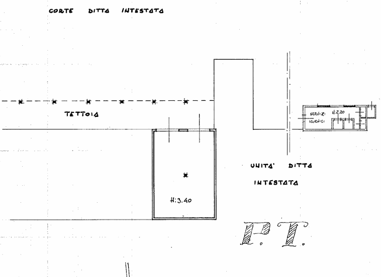
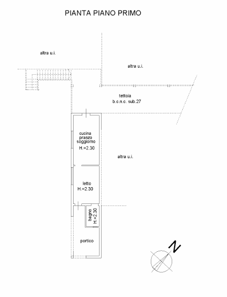
• 5 laboratori in linea al piano terra, n.° 5 magazzini al piano 1° ed un’abitazione al piano primo. Al piano terra i laboratori sono accessibili dal portico comune sub 30, al piano primo i magazzini e l’abitazione sono accessibili dalla tettoia sub 27 collegata al piano terra da una scala metallica. I laboratori al piano terra, sub 9, 10, 11 e 12 sono costituiti da un unico vano, ad esclusione del laboratorio sub 8 che presenta delle partizioni interne. I laboratori hanno dei servizi igienici comuni sub 26. I magazzini al piano primo, sub. 21, 22, 23, 24 e 25 sono costituiti da un unico vano ciascuno. L’abitazione al piano primo è invece composta da soggiorno-pranzo-cucina, una camera da letto, un servizio igienico ed un portico.
• Laboratorio, sub 13, che si sviluppa su un unico livello, composto da un ampio vano, nonché un vano censito come ufficio ed un servizio igienico.
Si prega di notare la presenza di amianto nelle coperture dei fabbricati.

Immobile soggetto a Fall. n.ro 104/2021 - LOTTO B14 - Tribunale di VERONA

PREZZO BASE D'ASTA € 110.742,19

OFFERTA MINIMA DI PARTECIPAZIONE € 110.742,19

PROSSIMO ESPERIMENTO: 13/04/2026

PER VISITE ED INFORMAZIONI CHIAMARE IL 0458012557 O 3491676530

La nostra Agenzia presente da anni sul mercato, ricerca le procedure esecutive e concorsuali fornendo una consulenza tecnico legale, bancaria completa per la partecipazione all'asta per l'acquisto dell'immobile, che comprende:
•Analisi della procedura esecutiva, valutazione del compendio immobiliare.
•Assistenza e Partecipazione all'asta fino alla chiusura dell'operazione e all'assegnazione dell'immobile tramite, decreto di trasferimento o acquisto con rogito notarile.
•Ricerca migliore tipologia di finanziamento con gli istituiti di credito convenzionati con il Tribunale di Verona per l'acquisto dell'immobile in Asta.

Da molti anni garantiamo un servizio sicuro e completo, volto al soddisfacimento della clientela più esigente che spazia dall’investitore al costruttore, dall’azienda multinazionale al privato.

Ci occupiamo con successo di:

•Consulenza finanziaria, con ricerca e valutazione di mutui bancari e/o leasing
•Gestione delle locazioni di patrimoni immobiliari
•Marketing e comunicazione immobiliare
I nostri servizi:
•Multi-pubblicazione dell'offerta immobiliare sui migliori canali online per la massima visibilità e tempi di conclusione più rapidi
•Valutazioni immobiliari
•Certificazioni energetiche, oggi obbligatorie per la vendita e la locazione di tutti gli immobili
•Verifiche di regolarità urbanistiche e catastali
o Registrazioni telematiche contratti di locazione (registrazione, rinnovo, proroga, risoluzione) a 50,00 € + iva
o Registrazioni telematiche contratti di locazione con cedolare secca a 30,00 € + iva

Informazioni

  • Bagni : 1
  • Camere : 1
  • Riscaldamento autonomo : Si
  • Ingresso indipendente : Si
  • Soggiorno con angolo cottura : Si
  • Piano terra : Si
  • Primo piano : Si
  • Totale piani : 2
  • Classe energetica : Non soggetto a Certificazione
  • Stato manutenzione : Buono
  • Numero locali : 2
  • Porticato : Si
  • Numero portoni : 1
  • Numero accessi carrai : 1

Dati aggiuntivi

  • Totale piani unità : 2

Richiedi informazioni sull'immobile

(*) Campi obbligatori

(Leggi la privacy policy)

** ESPRESSIONE DEL CONSENSO
Procedendo con la compilazione e con l’invio di questo modulo, presto consenso al trattamento dei dati personali forniti con le modalità e nei limiti indicati dall’informativa, ai sensi e per gli effetti dell’art. 7 del GDPR UE 679/2016.