CASALEONE (VR) LABORATORIO CON TRE ABITAZIONI IN ASTA IN VIA BOCCARONA 11/12/13

CASALEONE (VR) LABORATORIO CON TRE ABITAZIONI IN ASTA IN VIA BOCCARONA 11/12/13

  • Cod. rif.: GB13042026
  • Prezzo: 158.203,00 €
  • Camere 5
  • Bagni 7
  • 10621 Mq

Descrizione

CASALEONE (VR) VIA BOCCARONA 11/12/13 - Piena proprietà di laboratorio con tre abitazioni.
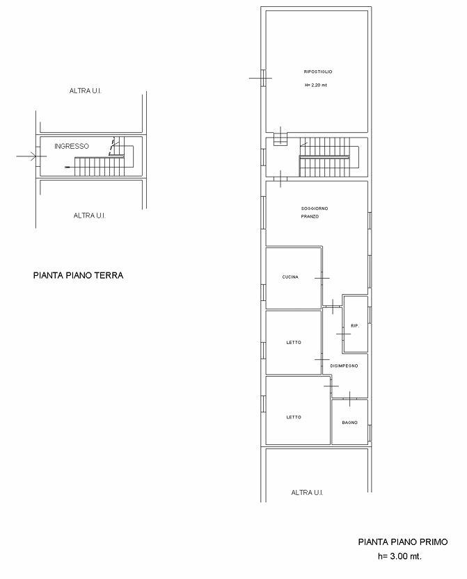
Il lotto in oggetto è formato da capannone disposto su un unico livello destinato a laboratorio e 3 abitazioni, una al piano terra e due al piano primo, contornati da area di pertinenza dei fabbricati.
Il capannone, di 10.208 mq, si sviluppa interamente al piano terra ed è suddiviso in 3 laboratori della lunghezza di 110 ml, costruiti in aderenza e collegati tra loro. A nord degli stessi: zona ingresso, esposizione, uffici e zona servizi igienici, nonché a sud deposito, magazzino e vari altri servizi.
Le tre unità abitative si compongono come segue:
• Appartamento piano primo - mq 128 - sub 3 (civico 11), suddiviso in vano scala di accesso, soggiorno-pranzo, cucina, disimpegno, ripostiglio, n. 2 camere da letto e bagno.
• Appartamento piano terra - mq 105 - sub 5 (senza numero civico) , suddiviso in ingresso, pranzo cucina, soggiorno, ripostiglio, camera da letto e bagno.
• Appartamento piano primo- mq 182 - m.n. 215 sub 6 (civico 13), suddiviso in vano scala di accesso, soggiorno-pranzo, cucina, disimpegno, ripostiglio, n. 2 camere da letto e bagno. Vano ripostiglio.
Il fabbricato insiste su un terreno della superficie di 26.365 mq.

Immobile soggetto a Fall. n.ro 104/2021 - LOTTO B12 - Tribunale di VERONA

PREZZO BASE D'ASTA € 28.000,00

OFFERTA MINIMA DI PARTECIPAZIONE € 28.000,00

PROSSIMO ESPERIMENTO: 13/04/2026

PER VISITE ED INFORMAZIONI CHIAMARE IL 0458012557 O 3491676530

La nostra Agenzia presente da anni sul mercato, ricerca le procedure esecutive e concorsuali fornendo una consulenza tecnico legale, bancaria completa per la partecipazione all'asta per l'acquisto dell'immobile, che comprende:
•Analisi della procedura esecutiva, valutazione del compendio immobiliare.
•Assistenza e Partecipazione all'asta fino alla chiusura dell'operazione e all'assegnazione dell'immobile tramite, decreto di trasferimento o acquisto con rogito notarile.
•Ricerca migliore tipologia di finanziamento con gli istituiti di credito convenzionati con il Tribunale di Verona per l'acquisto dell'immobile in Asta.

Da molti anni garantiamo un servizio sicuro e completo, volto al soddisfacimento della clientela più esigente che spazia dall’investitore al costruttore, dall’azienda multinazionale al privato.

Ci occupiamo con successo di:

•Consulenza finanziaria, con ricerca e valutazione di mutui bancari e/o leasing
•Gestione delle locazioni di patrimoni immobiliari
•Marketing e comunicazione immobiliare
I nostri servizi:
•Multi-pubblicazione dell'offerta immobiliare sui migliori canali online per la massima visibilità e tempi di conclusione più rapidi
•Valutazioni immobiliari
•Certificazioni energetiche, oggi obbligatorie per la vendita e la locazione di tutti gli immobili
•Verifiche di regolarità urbanistiche e catastali
o Registrazioni telematiche contratti di locazione (registrazione, rinnovo, proroga, risoluzione) a 50,00 € + iva
o Registrazioni telematiche contratti di locazione con cedolare secca a 30,00 € + iva

Informazioni

  • Bagni : 7
  • Camere : 5
  • Cucina : Si
  • Soggiorno : Si
  • Riscaldamento autonomo : Si
  • Ingresso indipendente : Si
  • Soggiorno con angolo cottura : Si
  • Piano terra : Si
  • Primo piano : Si
  • Totale piani : 2
  • Classe energetica : Non soggetto a Certificazione
  • Stato manutenzione : Buono
  • Numero locali : 7
  • Numero portoni : 1
  • Numero accessi carrai : 1

Dati aggiuntivi

  • Totale piani unità : 2

Richiedi informazioni sull'immobile

(*) Campi obbligatori

(Leggi la privacy policy)

** ESPRESSIONE DEL CONSENSO
Procedendo con la compilazione e con l’invio di questo modulo, presto consenso al trattamento dei dati personali forniti con le modalità e nei limiti indicati dall’informativa, ai sensi e per gli effetti dell’art. 7 del GDPR UE 679/2016.