SANGUINETTO (VR) CAPANNONE CON TERRENO IN ASTA IN VIA DOSSI

SANGUINETTO (VR) CAPANNONE CON TERRENO IN ASTA IN VIA DOSSI

  • Cod. rif.: GB13042026
  • Prezzo: 50.625,00 €
  • Camere 0
  • Bagni 1
  • 15381 Mq

Descrizione

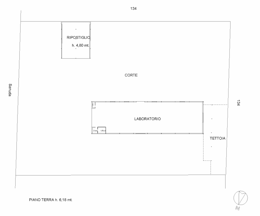
SANGUINETTO (VR) VIA DOSSI - Piena proprietà di capannone con tettoie e terreno con potenzialità edificatoria. L’immobile in oggetto ha pianta rettangolare di 678 mq, avente destinazione a laboratorio, posto al centro di un’area di pertinenza esclusiva; sono altresì presenti una tettoia in aderenza al laboratorio ad ovest dello stesso (priva di copertura), nonché una struttura un tempo adibita a ripostiglio/deposito (ex forno per l’essicamento legname), ad oggi crollata. L’area di pertinenza è in parte asfaltata ed in parte è a prato incolto.
Il terreno (particella 291) si trova a sud est dell’area di pertinenza dei fabbricati ed ha una superficie di 9.375 mq;
urbanisticamente ricade, nella porzione più a nord per una superficie di circa mq 1300 in zona D1, mentre la restante porzione di mq 8.075 ricade in zona agricola.

Immobile soggetto a Fall. n.ro 104/2021 - LOTTO B8 - Tribunale di VERONA

PREZZO BASE D'ASTA € 50.625,00

OFFERTA MINIMA DI PARTECIPAZIONE € 50.625,00

PROSSIMO ESPERIMENTO: 13/04/2026

PER VISITE ED INFORMAZIONI CHIAMARE IL 0458012557 O 3491676530

La nostra Agenzia presente da anni sul mercato, ricerca le procedure esecutive e concorsuali fornendo una consulenza tecnico legale, bancaria completa per la partecipazione all'asta per l'acquisto dell'immobile, che comprende:
•Analisi della procedura esecutiva, valutazione del compendio immobiliare.
•Assistenza e Partecipazione all'asta fino alla chiusura dell'operazione e all'assegnazione dell'immobile tramite, decreto di trasferimento o acquisto con rogito notarile.
•Ricerca migliore tipologia di finanziamento con gli istituiti di credito convenzionati con il Tribunale di Verona per l'acquisto dell'immobile in Asta.

Da molti anni garantiamo un servizio sicuro e completo, volto al soddisfacimento della clientela più esigente che spazia dall’investitore al costruttore, dall’azienda multinazionale al privato.

Ci occupiamo con successo di:

•Consulenza finanziaria, con ricerca e valutazione di mutui bancari e/o leasing
•Gestione delle locazioni di patrimoni immobiliari
•Marketing e comunicazione immobiliare
I nostri servizi:
•Multi-pubblicazione dell'offerta immobiliare sui migliori canali online per la massima visibilità e tempi di conclusione più rapidi
•Valutazioni immobiliari
•Certificazioni energetiche, oggi obbligatorie per la vendita e la locazione di tutti gli immobili
•Verifiche di regolarità urbanistiche e catastali
o Registrazioni telematiche contratti di locazione (registrazione, rinnovo, proroga, risoluzione) a 50,00 € + iva
o Registrazioni telematiche contratti di locazione con cedolare secca a 30,00 € + iva

Informazioni

  • Bagni : 1
  • Ingresso indipendente : Si
  • Piano terra : Si
  • Primo piano : Si
  • Totale piani : 2
  • Classe energetica : Non soggetto a Certificazione
  • Stato manutenzione : Da ristrutturare
  • Numero portoni : 1
  • Numero accessi carrai : 1

Dati aggiuntivi

  • Mq aree esterne : 14229
  • Totale piani unità : 2

Richiedi informazioni sull'immobile

(*) Campi obbligatori

(Leggi la privacy policy)

** ESPRESSIONE DEL CONSENSO
Procedendo con la compilazione e con l’invio di questo modulo, presto consenso al trattamento dei dati personali forniti con le modalità e nei limiti indicati dall’informativa, ai sensi e per gli effetti dell’art. 7 del GDPR UE 679/2016.