CEREA (VR) ABITAZIONE CON LABORATORIO IN ASTA IN VIA ISOLELLA 81/A-B-C

CEREA (VR) ABITAZIONE CON LABORATORIO IN ASTA IN VIA ISOLELLA 81/A-B-C

  • Cod. rif.: GB12052026
  • Prezzo: 42.750,00 €
  • Camere 4
  • Bagni 2
  • 311 Mq

Descrizione

CEREA (VR) VIA ISOLELLA 81/A-B-C - Piena proprietà Abitazione con Laboratorio. Il complesso edilizio è costituito da tre corpi di fabbrica affiancati di cui due che si elevano su due livelli fuori terra ed uno più grande centrale su tre livelli fuori terra.
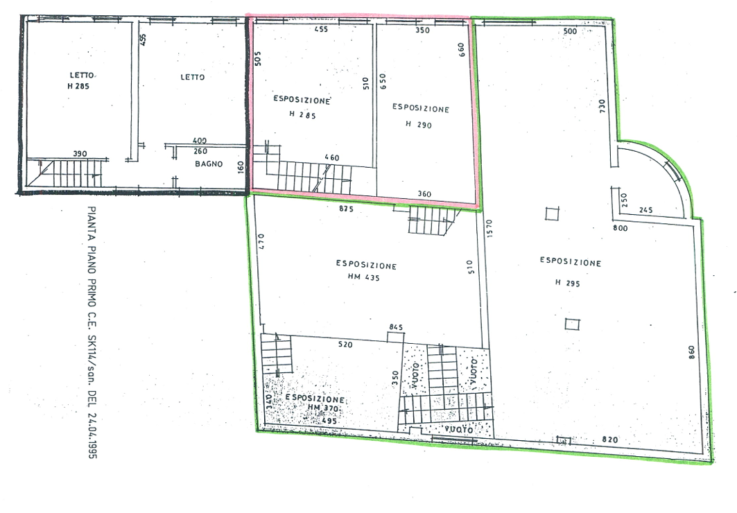
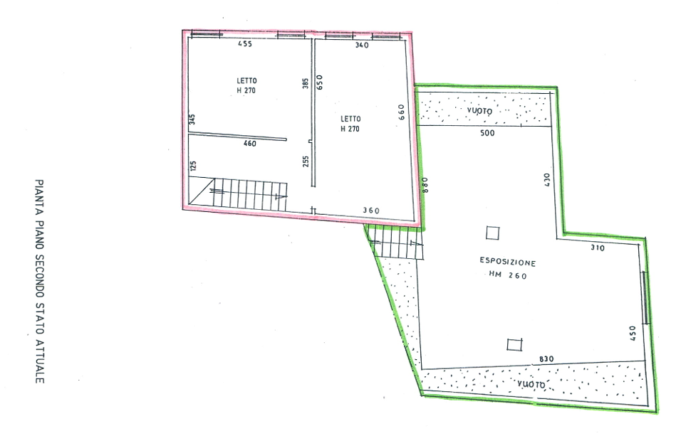
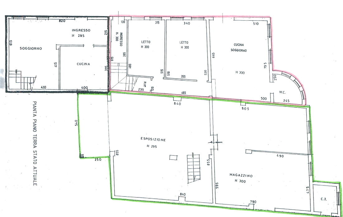
Gli immobili oggetto di stima si distribuiscono nella porzione sud del complesso nel seguente modo: il m.n. 209 sub 4 su due livelli di fatto occupando il primo corpo di fabbrica; il m.n. 209 sub 5 si estende su 3 livelli fiori terra, per metà del corpo di fabbrica più grande, nonché solo al piano terra del corpo di fabbrica verso il fiume Menago. Si evidenzia infatti che una porzione del piano 1° del versante sud è occupato da porzione di immobile confinante di proprietà di terzi.
Sono censiti come abitazione e laboratorio, ma di fatto sono state ricavate dal laboratorio n.° 2 abitazioni una al piano terra e l’altra al piano primo.

Si sviluppano in:
- Sub. 4 - Piano terra suddiviso in cucina, soggiorno e scala di collegamento. - Piano primo suddiviso in 2 camere da letto, disimpegno e servizio igienico.
- Sub. 5 - Piano terra (abitazione al civico 81/c): cucina, scala. Piano terra, primo e secondo (abitazione al civico 81/b): ingresso al piano terra e scala di collegamento, al piano primo: cucina, soggiorno e bagno; piano secondo: disimpegno e n. 2 camere da letto.

Immobile soggetto a Fall. n.ro 104/2021 - LOTTO 9 - Tribunale di VERONA

PREZZO BASE D'ASTA € 42.750,00

OFFERTA MINIMA DI PARTECIPAZIONE € 42.750,00

PROSSIMO ESPERIMENTO: 12/05/2026

PER VISITE ED INFORMAZIONI CHIAMARE IL 0458012557 O 3491676530

La nostra Agenzia presente da anni sul mercato, ricerca le procedure esecutive e concorsuali fornendo una consulenza tecnico legale, bancaria completa per la partecipazione all'asta per l'acquisto dell'immobile, che comprende:
•Analisi della procedura esecutiva, valutazione del compendio immobiliare.
•Assistenza e Partecipazione all'asta fino alla chiusura dell'operazione e all'assegnazione dell'immobile tramite, decreto di trasferimento o acquisto con rogito notarile.
•Ricerca migliore tipologia di finanziamento con gli istituiti di credito convenzionati con il Tribunale di Verona per l'acquisto dell'immobile in Asta.

Da molti anni garantiamo un servizio sicuro e completo, volto al soddisfacimento della clientela più esigente che spazia dall’investitore al costruttore, dall’azienda multinazionale al privato.

Ci occupiamo con successo di:

•Consulenza finanziaria, con ricerca e valutazione di mutui bancari e/o leasing
•Gestione delle locazioni di patrimoni immobiliari
•Marketing e comunicazione immobiliare
I nostri servizi:
•Multi-pubblicazione dell'offerta immobiliare sui migliori canali online per la massima visibilità e tempi di conclusione più rapidi
•Valutazioni immobiliari
•Certificazioni energetiche, oggi obbligatorie per la vendita e la locazione di tutti gli immobili
•Verifiche di regolarità urbanistiche e catastali
o Registrazioni telematiche contratti di locazione (registrazione, rinnovo, proroga, risoluzione) a 50,00 € + iva
o Registrazioni telematiche contratti di locazione con cedolare secca a 30,00 € + iva

Informazioni

  • Bagni : 2
  • Camere : 4
  • Cucina : Si
  • Soggiorno : Si
  • Riscaldamento autonomo : Si
  • Ingresso indipendente : Si
  • Soggiorno con angolo cottura : Si
  • Piano terra : Si
  • Primo piano : Si
  • Totale piani : 2
  • Classe energetica : Non soggetto a Certificazione
  • Stato manutenzione : Buono
  • Numero locali : 6
  • Numero portoni : 1
  • Numero accessi carrai : 1

Dati aggiuntivi

  • Totale piani unità : 2

Richiedi informazioni sull'immobile

(*) Campi obbligatori

(Leggi la privacy policy)

** ESPRESSIONE DEL CONSENSO
Procedendo con la compilazione e con l’invio di questo modulo, presto consenso al trattamento dei dati personali forniti con le modalità e nei limiti indicati dall’informativa, ai sensi e per gli effetti dell’art. 7 del GDPR UE 679/2016.