NOGAROLE ROCCA (VR) CAPANNONI CON PERTINENZA IN ASTA IN VIA ROMA 16

NOGAROLE ROCCA (VR) CAPANNONI CON PERTINENZA IN ASTA IN VIA ROMA 16

  • Cod. rif.: GB17042026
  • Prezzo: 175.309,00 €
  • Camere 0
  • Bagni 2
  • 1409 Mq

Descrizione

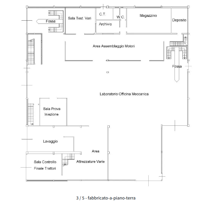
NOGAROLE ROCCA (VR) VIA ROMA 16 - Piena proprietà di Capannoni con area di pertinenza. Immobile composto da due fabbricati, adibiti ad officina meccanica con annessi uffici, magazzini e depositi. Superficie commerciale totale: 1409 mq. L’immobile è composto da due fabbricati, adibiti ad officina meccanica con annessi uffici amministrativi, magazzini e depositi. Il primo capannone, a due piani fuori terra, presenta una struttura prefabbricata in ferro, dimensioni indicative m. 20 x m. 30 e altezza interna di circa m. 5. Il secondo capannone, ad un piano fuori terra, ha misure indicative di m. 12 x m. 25. Trattasi di spazi adibiti alla manutenzione di macchine agricole, pertanto l’articolazione interna, le finiture, l’impiantistica e gli spazi esterni risultano specifici per lo svolgimento di attività inerenti la riparazione di automezzi pesanti ed affini. L’area esterna esclusiva risulta essere in parte pavimentata, in parte asfaltata e in parte a verde; gli ampi spazi esterni, perimetrali ai fabbricati, rendono gli stessi fruibili da mezzi pesanti e affini.

Immobile soggetto a Fallimento n.ro 48/2021 - LOTTO UNICO - Tribunale di VERONA

PREZZO BASE D'ASTA € 194.788,00

OFFERTA MINIMA DI PARTECIPAZIONE € 175.309,00

PROSSIMO ESPERIMENTO: 17/04/2026

PER VISITE ED INFORMAZIONI CHIAMARE IL 0458012557 O 3491676530

La nostra Agenzia presente da anni sul mercato, ricerca le procedure esecutive e concorsuali fornendo una consulenza tecnico legale, bancaria completa per la partecipazione all'asta per l'acquisto dell'immobile, che comprende:
•Analisi della procedura esecutiva, valutazione del compendio immobiliare.
•Assistenza e Partecipazione all'asta fino alla chiusura dell'operazione e all'assegnazione dell'immobile tramite, decreto di trasferimento o acquisto con rogito notarile.
•Ricerca migliore tipologia di finanziamento con gli istituiti di credito convenzionati con il Tribunale di Verona per l'acquisto dell'immobile in Asta.

Da molti anni garantiamo un servizio sicuro e completo, volto al soddisfacimento della clientela più esigente che spazia dall’investitore al costruttore, dall’azienda multinazionale al privato.

Ci occupiamo con successo di:

•Consulenza finanziaria, con ricerca e valutazione di mutui bancari e/o leasing
•Gestione delle locazioni di patrimoni immobiliari
•Marketing e comunicazione immobiliare
I nostri servizi:
•Multi-pubblicazione dell'offerta immobiliare sui migliori canali online per la massima visibilità e tempi di conclusione più rapidi
•Valutazioni immobiliari
•Certificazioni energetiche, oggi obbligatorie per la vendita e la locazione di tutti gli immobili
•Verifiche di regolarità urbanistiche e catastali
o Registrazioni telematiche contratti di locazione (registrazione, rinnovo, proroga, risoluzione) a 50,00 € + iva
o Registrazioni telematiche contratti di locazione con cedolare secca a 30,00 € + iva

Informazioni

  • Bagni : 2
  • Riscaldamento autonomo : Si
  • Ingresso indipendente : Si
  • Piano terra : Si
  • Primo piano : Si
  • Totale piani : 2
  • Aree esterne : Si
  • Classe energetica : E
  • Stato manutenzione : Buono
  • Impianto anti incendio : Si
  • Accesso disabili : Si
  • Animali ammessi : Si
  • Numero portoni : 1
  • Numero accessi carrai : 1
  • Allacciamento fognatura : Si

Dati aggiuntivi

  • Totale piani unità : 3

Richiedi informazioni sull'immobile

(*) Campi obbligatori

(Leggi la privacy policy)

** ESPRESSIONE DEL CONSENSO
Procedendo con la compilazione e con l’invio di questo modulo, presto consenso al trattamento dei dati personali forniti con le modalità e nei limiti indicati dall’informativa, ai sensi e per gli effetti dell’art. 7 del GDPR UE 679/2016.