CAPRINO VERONESE (VR) COMPLESSO INUSTRIALE IN ASTA IN LOCALITA' GAMBERON 17

CAPRINO VERONESE (VR) COMPLESSO INUSTRIALE IN ASTA IN LOCALITA' GAMBERON 17

  • Cod. rif.: GB00000000
  • Prezzo: 282.000,00 €
  • Camere 2
  • Bagni 1
  • 2036 Mq

Descrizione

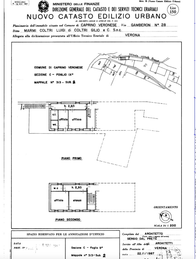
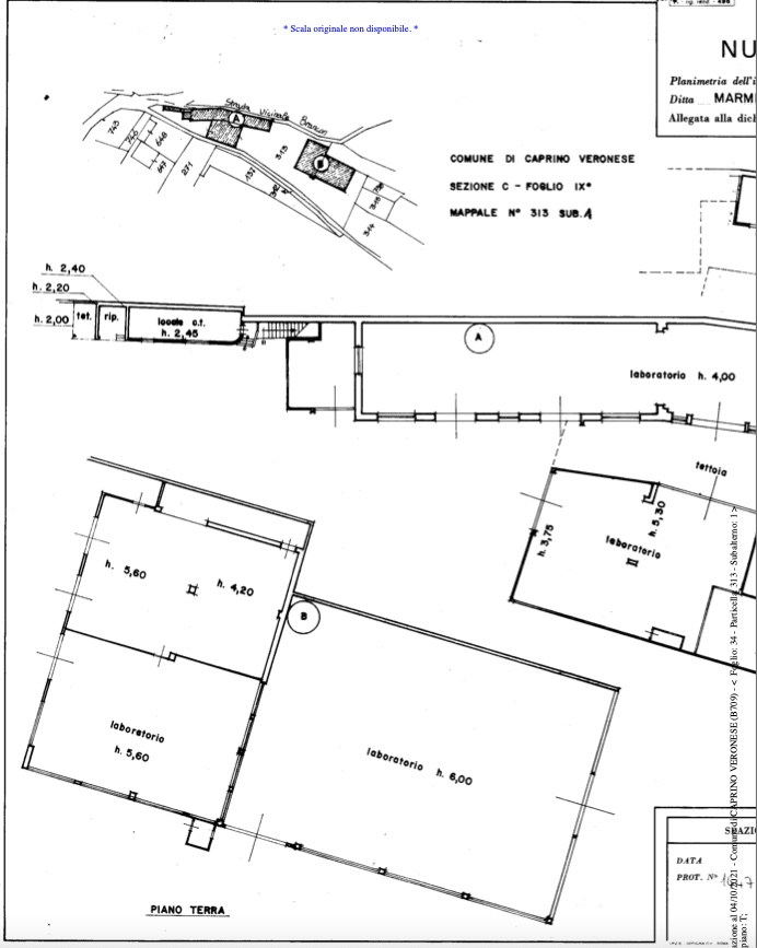
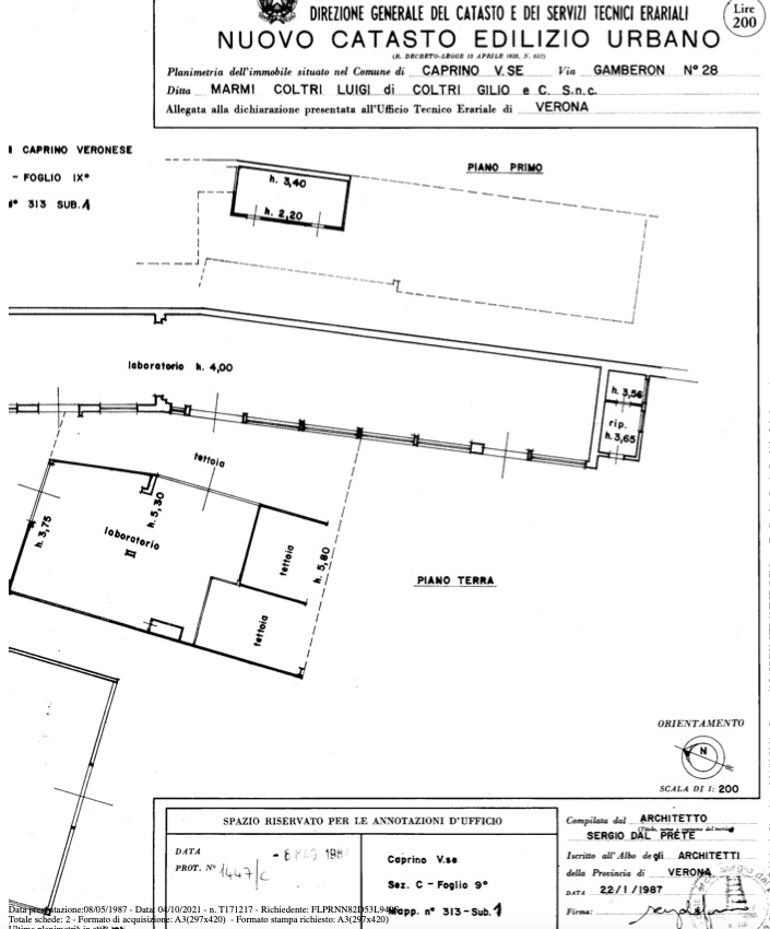
CAPRINO VERONESE (VR) LOCALITA' GAMBERON 17 - Piena proprietà di complesso immobiliare a destinazione industriale composto da capannoni, magazzini e depositi (1709 mq) oltre ad uffici (159 mq), abitazione del custode (168 mq) e terreni circostanti (9783 mq). E' inoltre compresa la cessione del mobilio e degli arredi d’ufficio presenti presso gli uffici, stimati dal perito in € 1.500,00

Immobile soggetto a FALLIMENTO. n.ro 79/2021 - LOTTO UNICO - Tribunale di VERONA

PREZZO BASE D'ASTA € 281.968,64

OFFERTA MINIMA DI PARTECIPAZIONE € 281.968,64

PROSSIMO ESPERIMENTO: 00/00/0000

PER VISITE ED INFORMAZIONI CHIAMARE IL 0458012557 O 3491676530

La nostra Agenzia presente da anni sul mercato, ricerca le procedure esecutive e concorsuali fornendo una consulenza tecnico legale, bancaria completa per la partecipazione all'asta per l'acquisto dell'immobile, che comprende:
•Analisi della procedura esecutiva, valutazione del compendio immobiliare.
•Assistenza e Partecipazione all'asta fino alla chiusura dell'operazione e all'assegnazione dell'immobile tramite, decreto di trasferimento o acquisto con rogito notarile.
•Ricerca migliore tipologia di finanziamento con gli istituiti di credito convenzionati con il Tribunale di Verona per l'acquisto dell'immobile in Asta.

Da molti anni garantiamo un servizio sicuro e completo, volto al soddisfacimento della clientela più esigente che spazia dall’investitore al costruttore, dall’azienda multinazionale al privato.

Ci occupiamo con successo di:

•Consulenza finanziaria, con ricerca e valutazione di mutui bancari e/o leasing
•Gestione delle locazioni di patrimoni immobiliari
•Marketing e comunicazione immobiliare
I nostri servizi:
•Multi-pubblicazione dell'offerta immobiliare sui migliori canali online per la massima visibilità e tempi di conclusione più rapidi
•Valutazioni immobiliari
•Certificazioni energetiche, oggi obbligatorie per la vendita e la locazione di tutti gli immobili
•Verifiche di regolarità urbanistiche e catastali
o Registrazioni telematiche contratti di locazione (registrazione, rinnovo, proroga, risoluzione) a 50,00 € + iva
o Registrazioni telematiche contratti di locazione con cedolare secca a 30,00 € + iva

Informazioni

  • Bagni : 1
  • Camere : 2
  • Cucina : Si
  • Soggiorno : Si
  • Riscaldamento autonomo : Si
  • Piano terra : Si
  • Primo piano : Si
  • Piano numero : 2
  • Classe energetica : E
  • Stato manutenzione : Buono
  • Numero locali : 3

Dati aggiuntivi

  • Mq aree esterne : 9783
  • Mq ufficio : 159
  • Superficie commerciale : 1709
  • Totale piani unità : 3

Richiedi informazioni sull'immobile

(*) Campi obbligatori

(Leggi la privacy policy)

** ESPRESSIONE DEL CONSENSO
Procedendo con la compilazione e con l’invio di questo modulo, presto consenso al trattamento dei dati personali forniti con le modalità e nei limiti indicati dall’informativa, ai sensi e per gli effetti dell’art. 7 del GDPR UE 679/2016.